Propriétés avec Chambre d'Hôtes, Gîte, Piscine et Camping
Ref #: LB5078N
Honoraires à la charge du vendeurMaison d'Hôtes
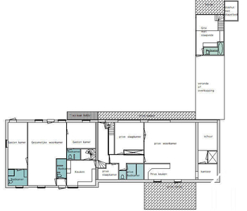
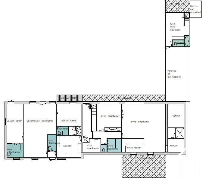
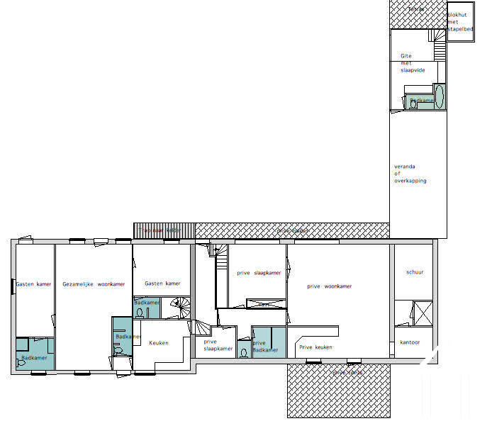
There are 5 bedrooms in the guest house, each with its own bathroom. All bedrooms have comfortable beds and good mattresses. In this house there is also a kitchen and a spacious shared livingroom with a table for 14 and a fireplace. The Chambre d’Hotes can also be used as a gite (14 people). The Maison d’Hôtes has a spacious attic with the possibility to create more rooms.
There is a gite in the garden, which is suitable for two adults and two children and is fully equipped; a private kitchen, bathroom with bath, a washing machine and a private terrace with barbecue.
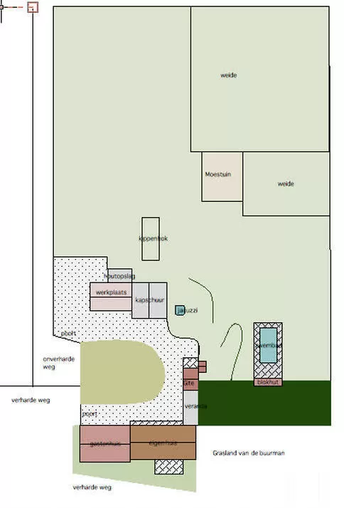
Camping à la ferme
A l'origine la propriété était une ferme qui offrait des emplacement de camping à la ferme. Il y a des points électriques et un évier avec l'eau froide installées dans le verger. Dans la maison d'hôtes il y a une salle de bain supplémentaire uniquement pour les campeurs.
Le site et les bâtiments sont en bon état et très bien entretenus. Il y a un adoucisseur d'eau pour l'eau potable. L'assainissement se fait par une fosse septique. Il y a deux poêle à bois dans la maison de gardiens avec une distribution d'air chaud dans le couloir, la salle de bain et la chambre principale. Chauffage au sol dans la cuisine et la salle de bain. Il y a des radiateurs électriques dans le gîte. Dans le séjour du gîte on trouve également un poêl à bois.
Cette propriété de chambres d’hôtes est vendue meublée avec tout l'inventaire et le site web.
Un dossier est disponible sur les risques environnementaux pour cette propriété à première demande.
Il peut également être trouvé en recherchant le village sur ce site georisques.gouv.fr
Property# LB5078N
Localisation
Autres infos
Energie

Personne à contacter
Linda Bakker
Vallée de la Loire et Sancerre
- La patrie de l'eau et du vin
- La majestueuse Loire, ‘La dernière rivière sauvage de l'Europe de l'ouest’
- le vignoble de Pouilly Fumé
- l'église de la Charité-sur-Loire
- Patrimoine mondiale de l'UNESCO